ADVANTAGES

Unique in the world in its category! The cast iron saw unit with a rigid closed loop structure can accommodate a blade of max. 400 mm diameter (for si 400es and Nova si 40) with the scoring blade mounted, ensuring perfect and easy cutting of veneer panels and thick solid wood material. The saw blade uses 100% of the motor power, thanks to the scoring blade with an independent motor as standard. The rotation fulcrums of the saw unit have a 120 mm diameter and stand on steady crescent shaped rests that separate it from the base: a rigid reliable solution.

Immediate control
Panel loading is easy on the large squaring frame with an idle roller at the end. The telescopic squaring fence with the inclined metric scale and two reversible stops can be used to square panels measuring 3200 x 3200 mm and for miter cuts at up to 45° on both sides of the frame.

Unrivalled cutting finishing
Optimal support also to larger pieces, with the sliding table 360 mm wide. Exceptional precision and smoothness: to secure the guides it is not used glue, since the thickness could affect sliding. They are secured with a procedure of aluminum riveting.

High-tech devices
Wide range of high-tech devices to make your Elite S even more powerful and personalized, like the start/stop pushbuttons for the main blade and scoring blade integrated in the sliding carriage; very useful when machining large dimensioned work pieces that prevent an easy and safe access to the main machine control panel.
Technical data
| si 315es | ||
| Max. sawblade diameter | mm / inches | 315 / 12 |
| Sawblade arbor size | mm / inches | 30 / 1.18 |
| Max. sawblade projection from table at 90°/45° | mm / inches | 101/71 3.98/2.8 |
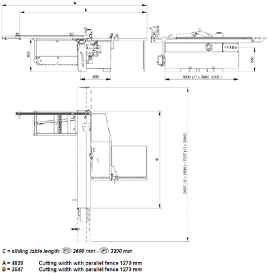
| Cutting width on parallel fence (Rip capacity) | mm / inches | 1270 / 50 |
| Max. squaring stroke of sliding table saw | mm / ft | 3200 / 10.5 |
| Single-phase motor | Hp | 4.8 |


